1531 N 750 W #4 Pleasant Grove, UT 84062
1531 N 750 W #4 Pleasant Grove, UT 84062
1531 N 750 W #4 Pleasant Grove, UT 84062
1531 N 750 W #4 Pleasant Grove, UT 84062
1531 N 750 W #4 Pleasant Grove, UT 84062
1531 N 750 W #4 Pleasant Grove, UT 84062
1531 N 750 W #4 Pleasant Grove, UT 84062
1531 N 750 W #4 Pleasant Grove, UT 84062
1531 N 750 W #4 Pleasant Grove, UT 84062
1531 N 750 W #4 Pleasant Grove, UT 84062

1531 N 750 W #4 Pleasant Grove, UT 84062

For Sale$953,900
4 beds
3 baths
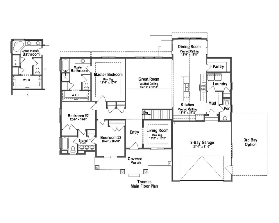
4,497 sqft
0.29 acres
2025 year
3 garage

PROPERTY DETAILS

About This Property

This home for sale at 1531 N 750 W #4 Pleasant Grove, UT 84062 has been listed at $953,900 and has been on the market for 139 days.

Full Description

Dont miss out on our last lot in this amazing Pleasant Grove community! As a semi custom builder, we can create your dream home. Currently offering a $15k design center credit. Contact the listing agent today and secure this lot! Images are showcasing prior home builds and may show upgrades not included in purchase price.

Property Highlights

  • Dont miss out on our last lot in this amazing Pleasant Grove community!
  • As a semi custom builder, we can create your dream home. .
  • Spacious 4 bedroom home perfect for comfortable living
  • 4,497 sq ft of thoughtfully designed living space
  • Situated on 0.29 acres with room to grow
  • Built in 2025 with modern features throughout

The home for sale at 1531 N 750 W #4 Pleasant Grove, UT 84062 has been listed at $953,900 and has been on the market for 139 days.

Dont miss out on our last lot in this amazing Pleasant Grove community! As a semi custom builder, we can create your dream home. Currently offering a $15k design center credit. Contact the listing agent today and secure this lot! Images are showcasing prior home builds and may show upgrades not included in purchase price.


Let me assist you on purchasing a house and get a FREE home Inspection!

General Information

  • Price

    $953,900   

  • Days on Market

    139

  • Area

    Pl Grove; Lindon; Orem

  • Total Bedrooms

    4

  • Total Bathrooms

    3

  • House Size

    4497 Sq Ft

  • Neighborhood

    MAKIN DREAMS

  • Address       

    1531 N 750 W #4 Pleasant Grove, UT 84062

  • Listed By   

    Arive Realty

  • HOA

    NO

  • Lot Size

    0.29

  • Price/sqft

    212.12

  • Year Built

    2025

  • MLS

    2101788

  • Garage

    3 car garage

  • Status

    Active

  • City

    Pleasant Grove

  • Term Of Sale

    Cash,Conventional,FHA,VA Loan

Interior Features

  • Bath: Primary
  • Closet: Walk-In
  • Den/Office
  • Disposal
  • Great Room
  • Range/Oven: Free Stdng.

Exterior Features

  • Double Pane Windows

Building and Construction

  • Roof: Asphalt
  • Exterior: Double Pane Windows
  • Construction: Asphalt,Stone,Stucco
  • Foundation Basement:

Garage and Parking

  • Garage Type: Attached
  • Garage Spaces: 3

Heating and Cooling

  • Air Condition: Central Air
  • Heating: Forced Air,Gas: Central

Land Description

  • Cul-de-Sac
  • Road: Paved

Price History

Jul 30, 2025

$953,900

Just Listed

$212.12/sqft


Mortgage Calculator

$
$
%
0% 10% 20% 30% 40% 50%
%
Rates updated: Dec 17, 7:00 AM

Estimated Monthly Payment

$0
Principal & Interest $0
Property Tax (est) $0
Home Insurance $0
Loan Amount: $0
Total Interest Paid: $0
Total Amount Paid: $0

Neighborhood Information

MAKIN DREAMS

Pleasant Grove, UT

Located in the MAKIN DREAMS neighborhood of Pleasant Grove

Nearby Schools
  • Elementary: Manila
  • High School: Pleasant Grove
  • Jr High: Pleasant Grove
  • High School: Pleasant Grove

Car-Dependent

person walking

Transit Score

16

Minimal Transit

Somewhat Bikeable

This area is Car-Dependent - very few (if any) errands can be accomplished on foot. Minimal public transit is available in the area. This area is Somewhat Bikeable - it's convenient to use a bike for a few trips.



Other Property Info

  • Area: Pl Grove; Lindon; Orem
  • Zoning: Single-Family
  • State: UT
  • County: Utah
  • This listing is courtesy of:: Courtney Fuller Arive Realty.
    801-798-5485.

Utilities

  • Natural Gas Connected

  • Electricity Connected

  • Sewer Connected

  • Water Connected


Based on information from UtahRealEstate.com as of 2025-07-30 09:07:33. All data, including all measurements and calculations of area, is obtained from various sources and has not been, and will not be, verified by broker or the MLS. All information should be independently reviewed and verified for accuracy. Properties may or may not be listed by the office/agent presenting the information. IDX information is provided exclusively for consumers’ personal, non-commercial use, and may not be used for any purpose other than to identify prospective properties consumers may be interested in purchasing.

Housing Act and Utah Fair Housing Act, which Acts make it illegal to make or publish any advertisement that indicates any preference, limitation, or discrimination based on race, color, religion, sex, handicap, family status, or national origin.

SIMILAR HOMES

1534 N 750 W #16, Pleasant Grove UT 84062

1534 N 750 W #16
Pleasant Grove UT 84062

$23,500 Preferred Lender Incentive! Apply this generous incentive toward a price reduction, closing costs, or a permanent or temporary interest rate buydown on ...

  • 3500 Sq Ft

  • 3

  • 2

  • 3

$899,900

47.0k

731 W 1590 N #15, Pleasant Grove UT 84062

731 W 1590 N #15
Pleasant Grove UT 84062

This premium Pleasant Grove community offers the perfect blend of flexibility and quality craftsmanship. Choose from a wide variety of expertly designed floorpl...

  • 3629 Sq Ft

  • 3

  • 3

  • 3

$924,900

980 W 1800 N, Pleasant Grove UT 84062

980 W 1800 N
Pleasant Grove UT 84062

Charming home on 1.03 acre in Pleasant Grove with breathtaking views of Mt. Timpanogos and Alpine Canyon. Fully remodeled in 2014, this home offers four spaciou...

  • 2441 Sq Ft

  • 4

  • 2

  • 1

$799,900

20.0k

Best Utah Real Estate Mobile App
MLS at your fingertips
Real-time updates
Listing Alerts
Interactive Map
Save your searches

Best Utah Real Estate

Your trusted MLS search companion

Accurate Data - Direct MLS feed for real-time listings
Privacy First - We never sell your personal data
Personalized - Custom alerts for your dream home
Easy to Use - Intuitive design for all users